1-к квартира, 18/22 эт., 39м²

Рязань, ул Полина, д. 3
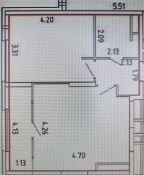
Предлагается к покупке в центре города квартира с замечательной планировкой Евро-2 в ЖК Метро-парк, от Северной компании. Дом сдан. Состояние от застройщика ( чистовая отделка). Квартира общей площадью 39,8 кв.м . Комната 14,0 кв.м . Кухня - гостиная 20, кв.м. Автономное отопление. Благоустроенная закрытая придомовая территория. Детская и спортивная площадки. Стоянка машин по периметру всего дома. развитая инфраструктура. В шаговой доступности остановки общественного транспорта, магазины, ТЦ " Премьер", ЖД и авто вокзалы. Один собственник. Документы готовы. Компания предоставляет полное юридическое сопровождение, помощь в оформлении ипотеки, гарантирует чистоту сделки и безопасность расчётов.
Тип предложения Продам
География Рязань, Рязанская область
Тип объекта
Вторичный рынок
Адрес
ул Полина, д. 3
Комнат
1
Планировка
Стандартная
Тип комнат
Раздельные
Общая площадь
39,80 м2
Жилая площадь
14,00 м2
Площадь кухни
20,00 м2
Этаж
18
Этажей в доме
22
Санузел
Совмещенный
Балкон
Лоджия
Условия сделки
ипотека

Все ваши сообщения мы читаем и все пожелания учитываем, но, к сожалению, ответ не гарантируем.

Если вы расчитываете получить ответ, не забудьте заполнить это поле.
Отправить

Сообщение будет отправлено на электронную почту автора объявления. Ваш электронный адрес будет ему доступен для ответа.

Отправить
Отправить